NEXSTA (YKK AP Product)

Lam nhôm

Hãy để không khí trong lành vào ngôi nhà của bạn với Lam nhôm NEXSTA.

Nhà ở riêng lẻ Chung cư Công trình thương mại

Khoảng giá : Phù hợp với phân khúc cao cấp

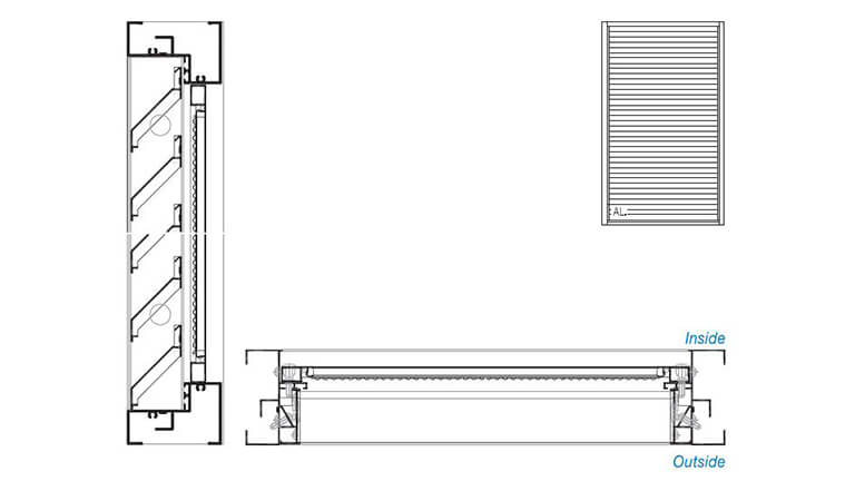
Lam nhôm NEXSTA

Lam nhôm mang lại khả năng lưu thông không khí và lưới chắn côn trùng. Nó được sử dụng ở nhiều nơi với các mục đích như mái che, bảo vệ khỏi mưa, thông gió, bảo vệ sự riêng tư, v.v.

Tính năng

Thông gió và bảo vệ sự riêng tư

Bạn có thể để không khí trong lành vào trong nhà khi sử dụng mái che, đảm bảo thông gió và bảo vệ sự riêng tư.